滾軸篩

滾軸篩簡介
滾軸篩也稱滾軸篩煤機,它的篩面由很多根平行排列的、其上交錯地裝有篩盤的輥軸組成,滾軸通過鏈輪或齒輪傳動而旋轉,其轉動方向與物料流動方向相同。為了使篩上的物料層松動以便于透篩,篩盤形狀有偏心的和異形的。為防止物料卡住篩軸,裝有安全保險裝置。滾軸篩全部為座式,有左傳動和右傳動之分,又分帶走輪和不帶走輪的,帶走輪的可在鋼軌上移動。
滾軸篩工作原理
由于滾軸篩篩軸是按不同的工作角度布置的,所以當物料在工作角度較高的位置運行時速度較快;當物料在工作角度較低的位置運行時速度較平緩。兩種不同速度運行下的物料,在篩面某一位置相匯時開始做軸向運動,這樣就使物料均勻地分布在篩面上,達到了提高篩分效率的目的。

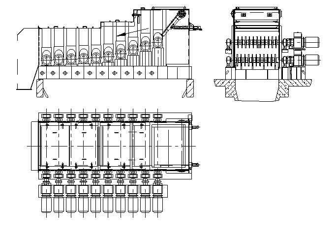
滾軸篩結構圖紙

滾軸篩主要由前篩箱、中篩箱、后篩箱、下篩箱、篩軸及煤擋板六部分組成,所有殼體均由鋼板焊接而成,箱體內兩側固定有耐磨襯板,大大提高了設備的壽命。
滾軸篩煤機結構特點:
1)篩軸由輥道電機單軸驅動,便于維修。
2)入料端篩軸傾斜安裝,可快速分離物料,篩分效率高。
3)兩篩軸上的篩片相交,減小了相鄰篩軸形成的死角,避免了卡篩。
4)設有旁路,配有電動推桿,手動操作換向機構,不需篩分時,直接經旁路過,便利設備檢修和清理。
5)旁路換向板采用欄柵結構,當物料落到換向板時部分顆粒首先落到篩分,有利地提高了篩分效率。
6)箱體兩側面設計活動插板結構,當需要更換檢修篩軸、篩片和防腐襯板非常方便。
滾軸篩技術參數

滾軸篩維護
1、在滾軸篩使用過程中,每次開機前必須檢查機器內是否存有物料。
2、應先開機,后給料。停機時,應先停料,后關機。確保停前機器內沒有物料。
3、每三個月向軸承內部加注潤滑油一次。
4、滾軸篩投入使用后三個月檢修一次,檢查鏈條、篩片、整機螺栓、液壓推桿等部件是否有松動情況。
5、當篩片受損嚴重后,不能達到篩分目的時應及時更換新的篩片。
6、定期檢修液壓推桿裝置,如果缺少液壓油就應及時添加。
求購滾軸篩廠家訂貨須知:
1.訂貨時請注明滾軸篩規格、型號及數量
2.可按用戶實際需要、設計、制造特殊規格的香蕉型滾軸篩
| 產品優勢知名篩分、輸送設備制造廠
廠家直銷、質量保證
◆專業從事振動篩、方形搖擺篩、斗式提升機、刮板輸送機生產銷售
◆過硬的質量、良好的品牌
◆篩分、輸送設備均為客戶信賴產品

地處新鄉,振動機械分機發源地
◆ 新鄉為振動機械的發源地,第一臺振動電機、振動篩均從新鄉開始,振動篩、方形搖擺篩、斗式提升機、刮板輸送機已經成為標準成熟產品。
針對不同行,針對客戶需求定制設備
◆ 客戶不同的使用環境,不同的需求,可以進行現有的標準設備進行改造加工促使篩機更能滿足客戶需求,更能適配行業需求。

專線物流配送貨物到使用單位
◆我們與多家物流都有合作,保證在最短時間內配送篩分機到指定廠家。
一年內質保,終身保修。
◆產品終身保修
◆超高產品質量鑄就超高產品服務,一年質保,終身保修
相關資訊
聯 系 人:胡經理 15903052402
聯系電話:0373-6396888
傳 真:0373-5471168
E-mail: 1274004197@qq.com
地 址:河南省新鄉市衛濱產業園區







